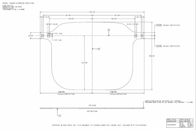
Несколько недель назад генеральный директор Apple Тим Кук продемонстрировал защитные лицевые щитки, которые компания начала выпускать в рамках помощи медицинским работникам в разгар пандемии COVID-19. Теперь Apple поделилась с пользователями документацией, детализирующей особенности процесса их изготовления.
В документации в дополнение к чертежам конструкции указаны применяемые материалы. Компания рекомендует использовать для изготовления головного крепления и защитного экрана лицевого щитка пластик ПЭТ или ПЭТГ вместо поликарбоната, отличающегося большой хрупкостью. Для ремешка рекомендуется использовать силикон, не содержащий латекса.
Также упоминаются в подробных файлах спецификаций методы изготовления, применяемые для крупномасштабного производства, включая резку лазером, водоструйную обработку и вырубную штамповку, с указанием точных размеров каждой детали.
Apple подчеркнула, что документация предназначена только для экспертов и что производство «должно осуществляться только специалистами в заводских условиях».
Для получения дополнительной помощи Apple в создании этих лицевых щитков компаниям рекомендовано обратиться по электронному адресу faceshieldmake@apple.com.
Несколько недель назад генеральный директор Apple Тим Кук продемонстрировал защитные лицевые щитки, которые компания начала выпускать в рамках помощи медицинским работникам в разгар пандемии COVID-19. Теперь Apple поделилась с пользователями документацией, детализирующей особенности процесса их изготовления. В документации в дополнение к чертежам конструкции указаны применяемые материалы. Компания рекомендует использовать для изготовления головного крепления и защитного экрана лицевого щитка пластик ПЭТ или ПЭТГ вместо поликарбоната, отличающегося большой хрупкостью. Для ремешка рекомендуется использовать силикон, не содержащий латекса. Также упоминаются в подробных файлах спецификаций методы изготовления, применяемые для крупномасштабного производства, включая резку лазером, водоструйную обработку и вырубную штамповку, с указанием точных размеров каждой детали. Apple подчеркнула, что документация предназначена только для экспертов и что производство «должно осуществляться только специалистами в заводских условиях». Для получения дополнительной помощи Apple в создании этих лицевых щитков компаниям рекомендовано обратиться по электронному адресу faceshieldmake@apple.com.
Компания Starlink заключила соглашение с немецким телекоммуникационным гигантом Deutsche Telekom по внедрению технологии спутниковой связи на мобильных устройствах в...
Анализ последнего выпуска статистических данных об оборудовании игровых ПК Steam Survey, который Valve ежемесячно проводит для понимания тенденций рынка и определения...
Apple столкнулась с неэффективностью собственной облачной инфраструктуры Private Cloud Compute, предназначенной для обработки ИИ-запросов. Мощность серверов, специально...
Апокалиптические сценарии по порабощению человека искусственным интеллектом, возможно, останутся в фантазиях голливудских сценаристов, но в реальной жизни человеку уже...
Компания Starlink заключила соглашение с немецким телекоммуникационным гигантом Deutsche Telekom по внедрению технологии спутниковой связи на мобильных устройствах в ряде европейских стран. Проект...
Комментарии (0)